物件番号 種目 登録日 |
所在地 |
交通 |
価格 間取 |
土地面積 建物面積 |
建ぺい率 容積率 |
No.1000060 不動産/中古一戸建て 2025/10/05 |
淡路市野島平林48-1 野島平林 戸建 |
あわ神あわ姫バス 平林バス停駅 歩3分 |
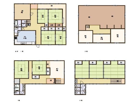
3,500万円 9K |
747.72u 272.08u |
70% 200% |
| ※画像をクリックすると拡大表示します※ |
 |
 |
| 土地権利 |
所有権 |
用途地域 |
- |
| 地目 |
宅地 |
地勢 |
高台 |
| 国土法届出 |
- |
接道状況 |
二方 |
| 都市計画 |
未線引 |
構造 |
木造 2階建 |
| 私道面積 |
- |
築年月 |
1981 (築?年) |
| 駐車場 |
有 |
建築条件 |
- |
| 現況 |
空家 |
引渡時期 |
相談 |
| 小学校区 |
- |
中学校区 |
- |
| 条件・設備 |
- |
| 備考 |
淡路志摩西海岸の高台から播磨灘の海を眺望。4年前まで宿泊施設として営業。自然との調和を感じながらゆったり過ごせる場所です。内見ご希望の方は鍵の準備に時間が掛かる場合がございます。離れ 189.88u(旅館) |
| ※特に記載のない物件の取引態様は、全て一般仲介です。 |
|
|
※物件の位置を正確に表示できない場合があります。 ※物件詳細の情報量により、地図表示に時間がかかる場合があります。 ※地図表示はGoogle社より提供を受けていますので、地図内容に責任は負いません。 |
|